1. Preis im städtebaulichen Ideenwettbewerb Tallage Alt-Saarbrücken
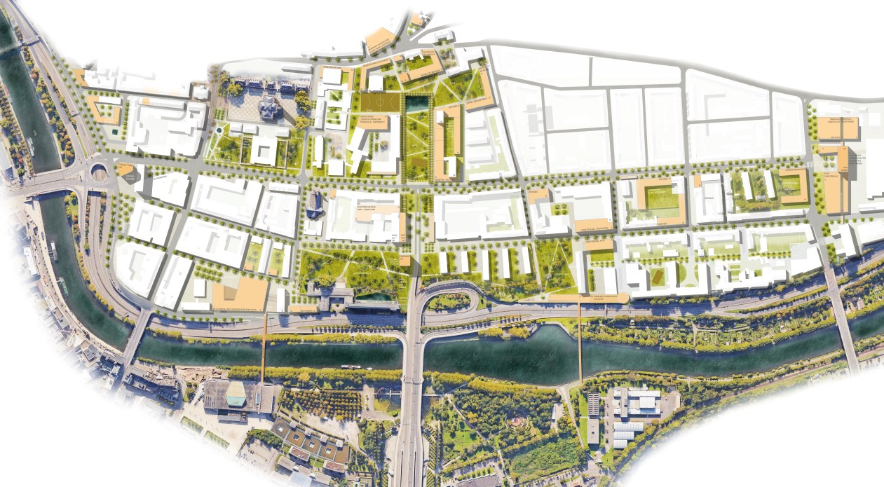
Brache als Chance
Die über Jahrzehnte konservierten, innerstädtischen Brachflächen sind wertvolles Kapital für eine Revitalisierung des Stadtteils. Es fehlt nicht viel, um aus der Heterogenität eine eigene Identität mit großen Qualitäten und Stärken zur Entfaltung zu bringen. Durch Nachverdichtung seiner Flächenreserven bietet der Standort attraktive Flächenangebote zur Aufnahme von Einrichtungen der Bildung, der Kultur, der Wirtschaft, der Verwaltung und des Wohnens. Von der dynamischen Entwicklung Alt-Saarbrückens zum Hochschul- und Wissenschaftsstandort gehen starke Impulse zur Aktivierung der Potentialflächen im Westen der Tallage aus.
Brücken bauen
Die städtebaulichen Probleme Alt-Saarbrückens lassen sich nicht allein im Quartier selbst lösen – es lohnt der Blick über die Saar. Zwei neue Brücken verbinden rechtes und linkes Saarufer: Messesteg und Campussteg. Die Flussquerung wird städtebauliches Leitmotiv. So gelingt nicht nur die Anbindung des Stadtteils an die Saarauen, sondern auch das Vernetzen mit den benachbarten Quartieren und ein zusammenhängender, flussübergreifender Grünraum-Parcours beidseitig der Saar – Bürgerpark 2.0. Durch vielfältiges Verweben profitieren auch die benachbarten Quartiere St. Johann und Malstatt. Die Stadt rückt zum Fluss.
Das Blech muss weg
Die stadtraumverträgliche und praxistaugliche Lenkung des suchenden und ruhenden Verkehrs ist Voraussetzung aller städtebaulichen Interventionen. Parkhäuser an der Peripherie fangen den Parksuchverkehr vor dem Eindringen ins Quartier in fußläufiger Entfernung von Ausbildungsstätten und Arbeitsplätzen ab. Zentrale Parkhäuser, Quartiersgaragen und konsequentes Anwohnerparken entlasten die Nachbarschaft und ermöglichen Nachverdichtung bei gleichzeitiger Aufwertung des öffentlichen Raumes. In unmittelbarer Nähe zum Roonpark entsteht anstelle des Eichamtes eine Tiefgarage (350 Plätze) als Basis der aufgesattelten Wohnbebauung.
Stadttore und Boulevards
Repräsentative Plätze und signifikante bauliche Hochpunkte prägen als Haupteingänge ein neues, progressives Bild des Quartiers: Alt-Saarbrücken, ein Stadtteil des 21. Jahrhunderts.
Team
Latz + Partner
LandschaftsArchitekten Stadtplaner
Schweitzer GmbH
Beratende Ingenieure



